• In Evidenza
  • In Affitto
  • Aggiornato: 13/11/2025 alle 12:11

AFFITTASI 3.5 LOC. CON GIARDINO VISTA LAGO A BOSCO LUGANESE

Bosco Luganese

Tua a CHF 1'650/mese

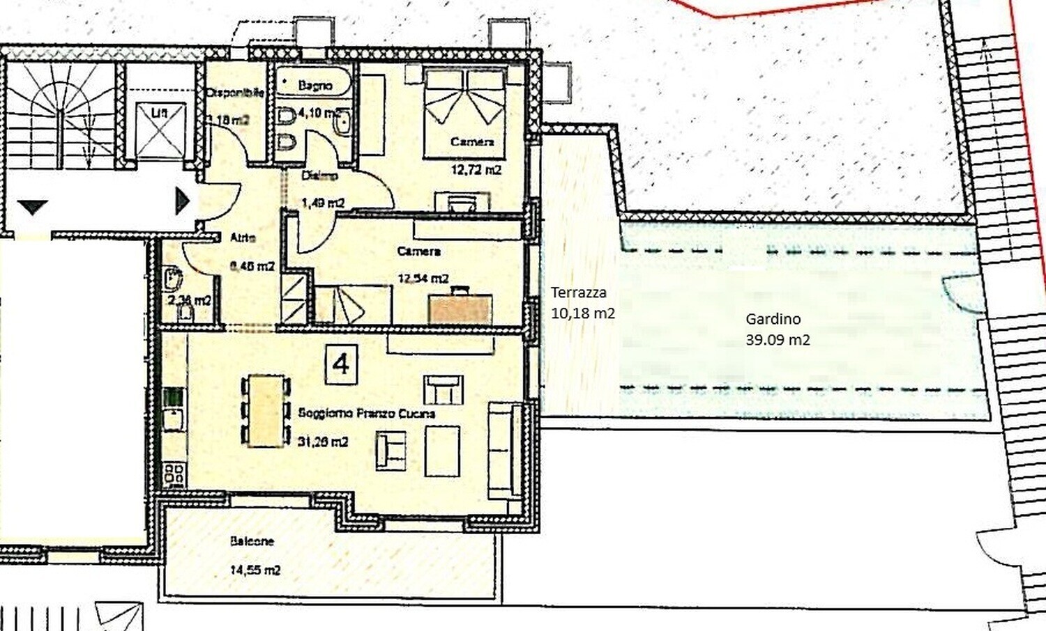
Proponiamo in affitto un luminoso appartamento di 3.5 locali di circa 95 mq, situato in una tranquilla palazzina di soli 6 appartamenti, con una meravigliosa vista panoramica sul lago e sui monti.

L'abitazione si distingue per la qualità delle finiture e per gli ampi spazi esterni che garantiscono comfort e privacy.

Distribuzione degli spazi:
Comodo atrio d'ingresso con 2 armadi a muro, ripostiglio e bagno ospiti.
Ampia zona giorno con cucina a vista dotata di piano di lavoro in pietra ed elettrodomestici di alta gamma.
Accesso a un balcone di oltre 14 mq con splendida vista panoramica. Giardino privato con terrazza di circa 50 mq.

La zona notte comprende due spaziose e luminose camere matrimoniali con accesso diretto alla terrazza e al giardino, oltre ad un bagno con doccia.

Caratteristiche e dotazioni:
Riscaldamento a pompa di calore con distribuzione a serpentine. Serramenti in alluminio con doppi vetri. Tapparelle elettriche e tende da sole esterne. Irrigazione automatica del giardino. Ascensore e lavanderia condominiale.

La palazzina è situata in fondo a una strada senza uscita, garantendo massima tranquillità e privacy.

Bosco Luganese è una frazione del comune di Bioggio, caratterizzato da un moltiplicatore fiscale vantaggioso (65%). La zona offre ottimi servizi: trasporti pubblici, scuole, negozi, aree verdi e percorsi naturalistici curati.

Affitto mensile: 1'650.- CHF;
Spese accessorie: 250.- CHF;
Posteggio esterno: 50.- CHF;
1950 CHF/mese tutto compreso.

Contratto minimo 3 anni e nessun conguaglio a fine anno;
Caparra richiesta di 3 mensilità (5100 CHF), si accetta Swiss Caution;
Animali di piccola taglia ammessi, previo accordo.
SM/16827

Dettagli Proprietà

  • Codice Interno : 16827
  • Prezzo : CHF 1'650/mese
  • Anno di Costruzione : 2006
  • Superficie : 75.00 mq
  • Camere : 2
  • Bagni : 2
  • Posteggi : 1

Servizi / Caratteristiche

  • Bagno Finestrato
  • Deposito attrezzi
  • Impianto di irrigazione giardino
  • Lavastoviglie
  • Lift/ascensore
  • Sistema per disabili
  • Tapparelle elettriche
  • Tende da sole esterne
  • Wi-Fi

Condividi

Richiedi una Valutazione del Tuo Immobile

Possiamo aiutarti a vendere il tuo immobile al miglior prezzo e velocemente