• In Evidenza
  • In Affitto
  • Aggiornato: 10/04/2026 alle 12:59

AFFITTASI UFFICIO DI 65 MQ CON AMPIE VETRINE A LORETO

Lugano

Tua a CHF 1'250/mese

In zona Loreto a Lugano, in posizione strategica con ottimo passaggio pedonale, proponiamo in affitto uno spazio commerciale luminoso e ben visibile, ideale per attività amministrative, studi professionali o uffici.

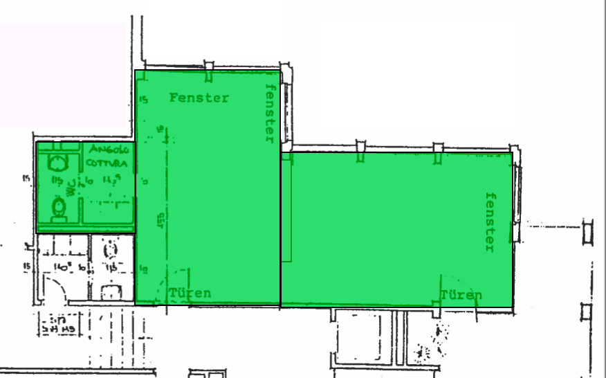
Il locale si sviluppa su 65 mq lordi, suddivisi in due ampi ambienti di circa 30 mq ciascuno, oltre a un servizio.

Le grandi vetrine alte 3 metri garantiscono eccellente visibilità e rappresentano uno spazio perfetto per esposizione prodotti, insegne o comunicazione pubblicitaria.

- Zona servita e facilmente raggiungibile (10 minuti a piedi dalla stazione);
- Ottima visibilità su strada;
- Spazi versatili e facilmente arredabili;
- Ideale per ufficio o attività amministrative o spazio creativo: danza, atelier.

Nota: Il bagno non è accessibile a persone in sedia a rotelle; il locale non è quindi idoneo ad attività che richiedono requisiti sanitari specifici (es. studi medici o fisioterapia).

Spese: 300 CHF/mese;
Totale: 1'550 CHF/mese.

Caparra: 3 mesi (4'650 CHF);
Contratto minimo: 1 anno.

Un posteggio in autorimessa disponibile a 150 CHF/mese
JS/17114

Dettagli Proprietà

  • Codice Interno : 17114
  • Prezzo : CHF 1'250/mese
  • Anno di Costruzione : 2000
  • Superficie : 65.00 mq
  • Camere : 0
  • Bagni : 0
  • Posteggi : 1

Condividi

Richiedi una Valutazione del Tuo Immobile

Possiamo aiutarti a vendere il tuo immobile al miglior prezzo e velocemente