Ampio e luminoso appartamento 4.5 locali di 110 mq lordi con 2 terrazze, da cui ammirare il panorama sul verde circostante, sito al primo piano di una casa bifamiliare in un contesto molto tranquillo nel comune di Vacallo.
Gli spazi sono suddivisi come segue:
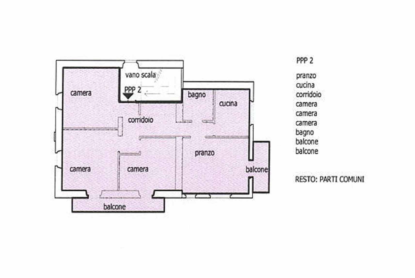
Una grande corridoio con armadi a muro divide la zona giorno dalla zona notte.
Un bel soggiorno spazioso con uscita sul terrazzo ed un ulteriore finestra riempiono di luce questo ambiente, interamente pavimentato in parquet ben tenuto e con una cucina abitabile in cui è possibile inserire comodamente un tavolino da pranzo.
La zona notte è composta da tre camere da letto con pavimenti in parquet, di cui due matrimoniali ed una singola, con accesso al terrazzo da dove si può vedere il giardino sottostante di proprietà, grande circa 100 mq.
Completano la zona un bagno con vasca e lavatrice.
Al piano superiore troviamo una mansarda di circa 55 mq con entrata indipendente in cui si può ricavare un bel 2.5 locali, che può venire integrato all'appartamento sottostante tramite una scala interna, rendendo la proprietà un duplex 6.5 locali di 160 mq complessivi, o può essere reso indipendente e messo eventualmente a reddito.
Tramite i nostri architetti è già stata fatta una valutazione generale dei lavori, è quindi già possibile per noi fornirvi un preventivo chiavi in mano ed aiutarvi a scegliere le finiture in base ai vostri gusti.
L'intera proprietà ha soffitti molto alti e necessita di lavori di ammodernamento per essere adattata agli standard odierni, le facciate della casa sono in ottime condizioni e sono state rifatte completamente nel 2010, gli infissi sono in legno così come le persiane.
Il riscaldamento è alimentato a gasolio (caldaia sostituita nel 2015) e distribuito tramite caloriferi.
Essendo questa una casa composta da sole due unità non ci sono spese condominiali.
Questo immobile è ideale per chi cerca un oggetto pieno di potenzialità ad un prezzo molto vantaggioso e che si presta ad una ristrutturazione completa in base alle proprie esigenze.
La zona, molto tranquilla, è ben servita dai mezzi pubblici, tutti i principali servizi si trovano a pochi minuti d'auto, a pochi passi è possibile raggiungere diversi percorsi pedonali nella natura.
Completano la proprietà due box e due posti auto esterni per un totale di 50000 CHF, esclusi dal prezzo di vendita.
DM/2651
- CLICCA QUI SOTTO PER FARE UNA VISITA VIRTUALE ALLA PROPRIETÀ! -
https://youtu.be/x6Z6356Q2IY