• In Evidenza
  • In Vendita
  • Aggiornato: 31/03/2026 alle 09:24

APPARTAMENTO 2.5 LOCALI IN COSTRUZIONE A BIASCA

Biasca

Tua a CHF 320'000

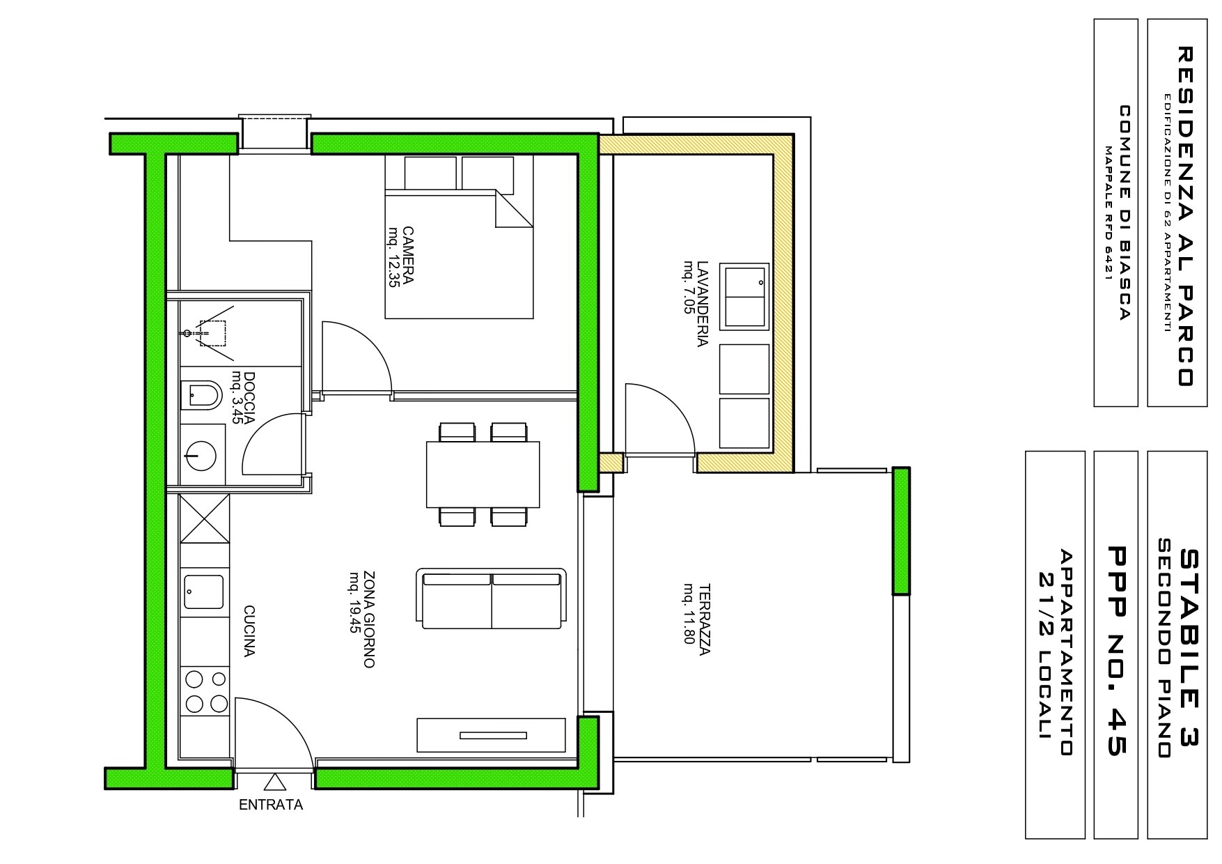
Proponiamo in vendita un nuovo appartamento di 2.5 locali a Biasca, con una superficie lorda di circa 45 mq, situato al secondo piano di una moderna palazzina di cinque livelli, la cui ultimazione è prevista nel 2026.

L'abitazione si apre su un luminoso soggiorno con cucina moderna a vista ed accesso diretto al terrazzo di 11mq, uno spazio funzionale e ben organizzato, ideale per chi cerca comfort e praticità in un ambiente contemporaneo. La zona notte comprende una camera da letto accogliente, mentre il bagno è dotato di doccia e rifiniture moderne.

Dal terrazzo, perfetto per momenti di relax all'aperto vi è l'accesso alla lavanderia privata interna di 8 mq, un valore aggiunto che garantisce comodità e indipendenza nella gestione quotidiana.

Dal punto di vista tecnico, l'appartamento è dotato di infissi in alluminio con tripli vetri, che assicurano un eccellente isolamento termico e acustico. Il riscaldamento è alimentato tramite teleriscaldamento, con distribuzione del calore attraverso serpentine a pavimento, per un comfort abitativo uniforme ed efficiente dal punto di vista energetico.

Inserito in un contesto strategico e ben servito, vicino a scuole, negozi, stazione e principali collegamenti, l'immobile unisce tranquillità residenziale e comodità, a pochi minuti da tutti i servizi.

Completano l'offerta una cantina ed un comodo posteggio in autorimessa dal valore di 30'000.- CHF, escluso dal prezzo di vendita.
FGS/17095

Dettagli Proprietà

  • Codice Interno : 17095
  • Prezzo : CHF 320'000
  • Anno di Costruzione : 2026
  • Superficie : 45.00 mq
  • Camere : 2
  • Bagni : 1
  • Posteggi : 1

Servizi / Caratteristiche

  • Attacchi per Lavatrice Propria
  • Deposito biciclette
  • Deposito moto
  • Fibra Ottica
  • Lavanderia in casa
  • Lift/ascensore
  • Parco Giochi
  • Tapparelle elettriche
  • Videocitofono

Condividi

Richiedi una Valutazione del Tuo Immobile

Possiamo aiutarti a vendere il tuo immobile al miglior prezzo e velocemente