• In Evidenza
  • In Vendita
  • Aggiornato: 15/04/2026 alle 11:49

VILLA DI 250 MQ CON GIARDINO IN POSIZIONE PANORAMICA A ROVIO

Rovio

Tua a CHF 1'050'000

Ampia e moderna villa su due livelli con due ingressi indipendenti, in posizione residenziale e con ottima esposizione solare (orientata a sud est e sud ovest).
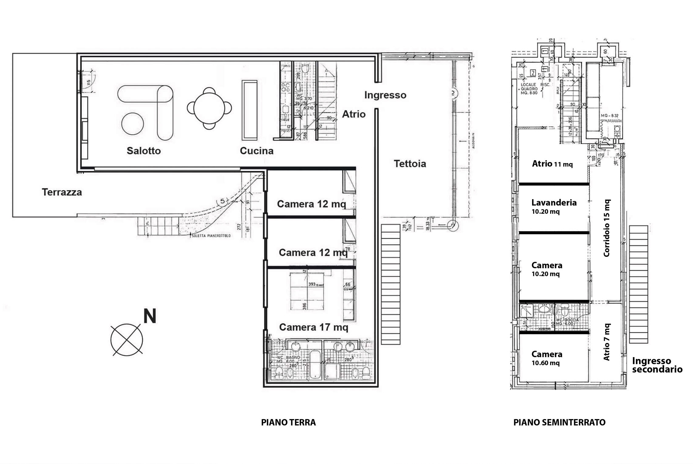
La casa è attualmente vissuta come grande villa unifamiliare ma può essere facilmente suddivisa, creando un grande 4.5 locali al piano superiore e un bell'appartamento di 2.5 locali al piano seminterrato, con accesso privato.

Questa abitazione colpisce per il grandissimo soggiorno che ha totale privacy, con cucina a vista, e un salotto che dispone di un'area divani davvero ampia e piacevole, arricchita da un caminetto e con splendida luce naturale che entra dalle grandi vetrate a tutt'altezza.
Esternamente ci sono due terrazze collegate tra loro, una lungo tutto il salone e la seconda esposta a sud-ovest con luce naturale fino alle ultime ore della giornata.

Costruita su due livelli nel 1992 su un fondo di 918 mq, con bellissimi dettagli architettonici, questa proprietà si estende su una superficie lorda di ca. 250 mq, offrendo ampi spazi sia interni che esterni.

La villa è circondata da un rigoglioso giardino, molto curato e ricco di splendidi dettagli: una vera oasi di verde dove potrai rilassarti e godere della natura con vista aperta sui monti.

Questa villa è composta da:
Ingresso molto ampio con armadi spaziosi e un disimpegno comodo; bagno ospiti e di servizio, cucina e salotto, terrazza, giardino, corridoio che conduce a tre camere da letto di cui una matrimoniale molto ampia con bagno en-suite e due camere singole di buone dimensioni servite da un terzo bagno al piano.

Al piano inferiore troviamo altre 3 stanze, di cui due camere, oltre a un locale cantina/tecnico.
Il piano è inoltre servito da un bagno ampio e finestrato.

La villa si presenta in buone condizioni, con infissi in alluminio a doppio vetro; il riscaldamento è assicurato da una pompa di calore aria-aria, con distribuzione tramite serpentine a pavimento e radiatori con termovalvole.

La proprietà è completata da 2 posteggi coperti da una tettoia e un posto auto esterno scoperto.
DM/16934

Dettagli Proprietà

  • Codice Interno : 16934
  • Prezzo : CHF 1'050'000
  • Anno di Costruzione : 1992
  • Superficie : 250.00 mq
  • Camere : 6
  • Bagni : 4
  • Posteggi : 4

Servizi / Caratteristiche

  • Attacchi per Lavatrice Propria
  • Bagno Finestrato
  • Bidet
  • Camino
  • Deposito biciclette
  • Deposito moto
  • Giardino Recintato
  • Lavastoviglie
  • Lavanderia in casa
  • Piano Cottura a Induzione
  • Porta Blindata
  • Tende oscuranti
  • Vetri Anti-sfondamento
  • Wi-Fi

Condividi

Richiedi una Valutazione del Tuo Immobile

Possiamo aiutarti a vendere il tuo immobile al miglior prezzo e velocemente