• In Evidenza
  • In Vendita
  • Aggiornato: 02/04/2026 alle 16:37

CASA DI NUCLEO DA RISTRUTTURARE NEL CUORE DI BIASCA

Biasca

Tua a CHF 375'000

Nel suggestivo nucleo storico di Biasca, a pochi passi da tutti i principali servizi e comodità, proponiamo in vendita una caratteristica casa ticinese completamente da ristrutturare, ideale per chi desidera realizzare un progetto abitativo su misura.

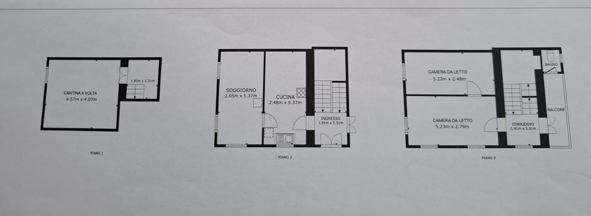
La proprietà si sviluppa su circa 200 mq distribuiti su tre livelli, oltre a una spaziosa mansarda e un pratico seminterrato, per un totale di 7.5 locali. Gli spazi generosi e la struttura tipica offrono molteplici possibilità di personalizzazione.

Distribuzione degli spazi:
- Al PIANO TERRA: accogliente portico d'ingresso che conduce a un locale con camino, affiancato da un ulteriore spazio versatile, ideale come locale hobby, studio o salottino.
- Al PRIMO PIANO: due locali e un balconcino con piccolo bagno dotato di toilette alla turca.
- Al SECONDO PIANO: tre locali, di cui uno con accesso a una graziosa terrazzina con vista aperta sui monti circostanti.

Completano la proprietà un'ampia mansarda finestrata, una cantina e un parcheggio esterno, con possibilità di ricavarne un secondo apportando alcune modifiche.

Caratteristiche e condizioni:
L'immobile necessita di una ristrutturazione completa: gli infissi sono in legno con vetri semplici e attualmente non è presente un impianto di riscaldamento.

Alcune immagini degli interni arredati sono state realizzate con l'ausilio dell'intelligenza artificiale a scopo illustrativo; la casa viene venduta nello stato attuale, completamente vuota.

Un'opportunità unica!
Questa proprietà rappresenta una rara occasione per chi desidera vivere nel fascino autentico di un nucleo ticinese, valorizzando un immobile dal grande potenziale e trasformandolo in una residenza unica e personalizzata.
NS/17248

Dettagli Proprietà

  • Codice Interno : 17248
  • Prezzo : CHF 375'000
  • Anno di Costruzione : 1900
  • Superficie : 165.00 mq
  • Camere : 2
  • Bagni : 1
  • Posteggi : 2

Servizi / Caratteristiche

  • Bagno Finestrato
  • Camino

Condividi

Richiedi una Valutazione del Tuo Immobile

Possiamo aiutarti a vendere il tuo immobile al miglior prezzo e velocemente