• In Evidenza
  • In Vendita
  • Aggiornato: 05/05/2026 alle 18:23

ELEGANTE VILLA UNIFAMILIARE CON GIARDINO A VACALLO

Vacallo

Tua a CHF 870'000

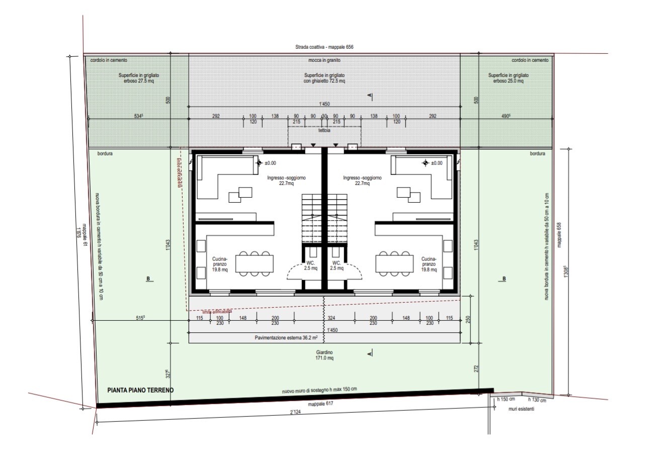
In tranquilla zona residenziale di Vacallo, proponiamo in vendita due moderne case unifamiliari affiancate, di 115 mq lordi ca. cadauna, inserite in un elegante edificio bifamiliare di nuova costruzione.

Le abitazioni sono indipendenti, ciascuna con ingresso privato, giardino esclusivo e due posteggi esterni già inclusi nel prezzo.
La posizione garantisce buona esposizione solare, privacy e facile accesso a tutti i principali servizi.
Una soluzione ideale per famiglie o per chi desidera una casa moderna, funzionale e pronta ad accogliere una vita quotidiana comoda e rilassata.

Al PIANO TERRA si viene accolti da un ingresso che conduce alla zona giorno, composta da soggiorno luminoso, cucina open-space con zona pranzo ed uscita diretta sul giardino privato. Completa il piano un WC per gli ospiti.

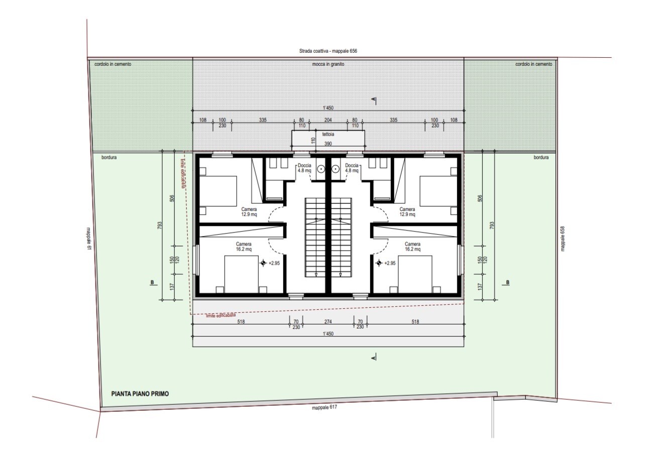
Il PRIMO PIANO ospita tre camere da letto e un bagno con doccia.

Al SECONDO PIANO si trovano infine una spaziosa camera, un secondo bagno, la lavanderia e il locale tecnico.

Gli infissi della proprietà sono in PVC con vetri doppi e l'impianto di riscaldamento è alimentato tramite termopompa, con distribuzione mediante serpentine a pavimento.

Completano la proprietà due posteggi esterni, inclusi nel prezzo di vendita.

La seconda casa unifamiliare presenta le stesse caratteristiche ed è in vendita al prezzo di 890'000.- CHF, comprensivi di 2 posti auto esterni, come per la proprietà in oggetto.

Ideale per famiglie, coppie o per chi cerca una casa moderna in una zona tranquilla ma ben collegata.
Ottima opportunità anche per due nuclei familiari che desiderano vivere vicini mantenendo la propria indipendenza.

NON FARTI SCAPPARE QUESTO OGGETTO E CONTATTACI OGGI STESSO PER MAGGIORI INFORMAZIONI!
MYG/17155

Dettagli Proprietà

  • Codice Interno : 17155
  • Prezzo : CHF 870'000
  • Anno di Costruzione : 2025
  • Superficie : 115.00 mq
  • Camere : 3
  • Bagni : 2
  • Posteggi : 2

Servizi / Caratteristiche

  • Attacchi per Lavatrice Propria
  • Bagno Finestrato
  • Bidet
  • Giardino Recintato
  • Lavastoviglie
  • Lavanderia in casa

Condividi

Richiedi una Valutazione del Tuo Immobile

Possiamo aiutarti a vendere il tuo immobile al miglior prezzo e velocemente