• In Evidenza
  • In Vendita
  • Aggiornato: 23/04/2026 alle 15:31

APPARTAMENTO 2.5 LOCALI CON BALCONE AD AGNO MONDONICO

Agno

Tua a CHF 295'000

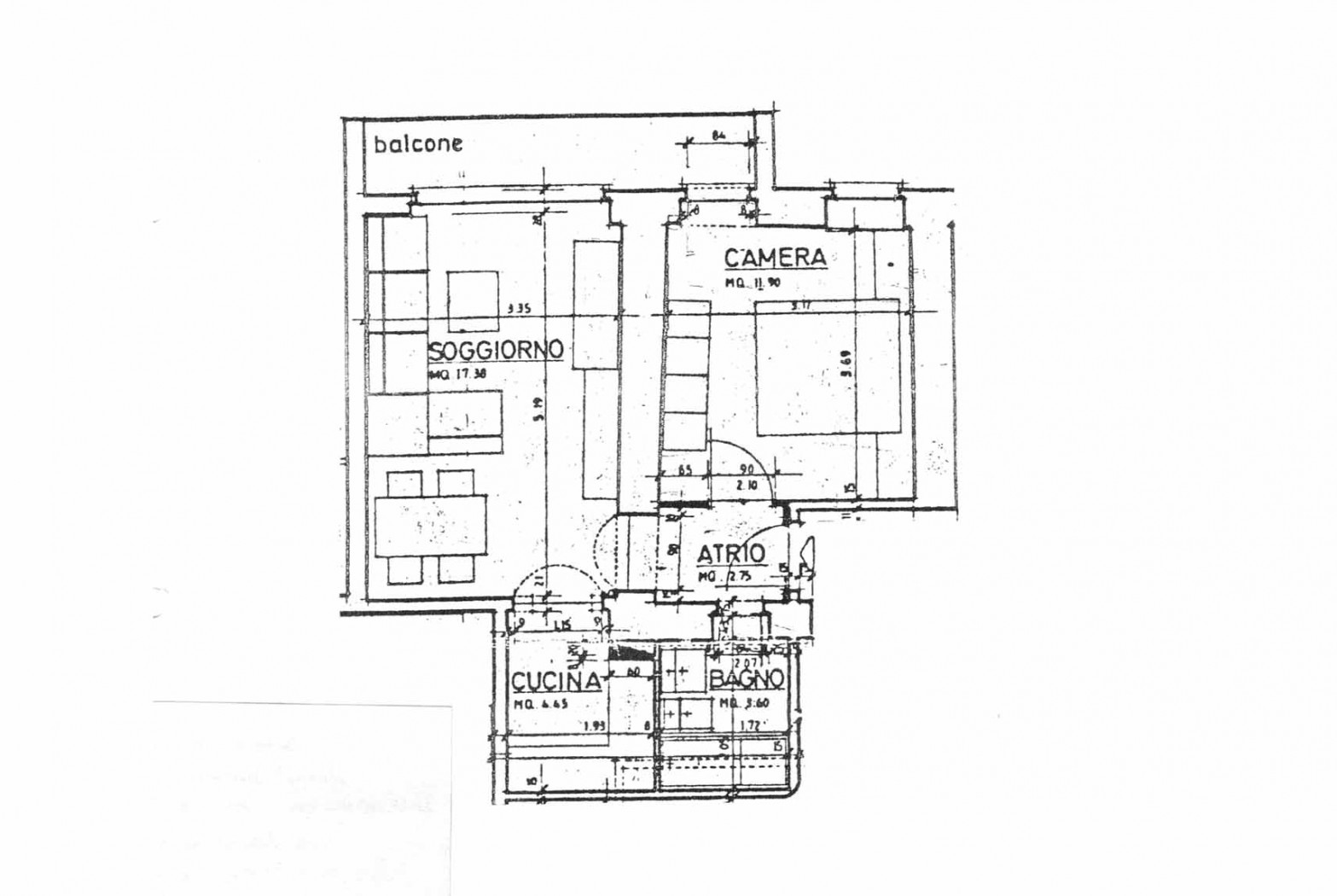
Luminoso appartamento 2.5 locali di 48 mq ca. con balcone, con ottima esposizione solare a sud-est, al primo piano in una palazzina di soli 3 piani, in zona tranquilla e molto soleggiata nella località di Agno-Mondonico.

L'appartamento è composto da un ingresso seguito dal soggiorno con cucina separata (angolo cottura) e accesso al balcone di 5 mq con vista aperta sui monti, una camera da letto matrimoniale e un bagno con vasca.
Il locale lavanderia è in comune ed attrezzato per tutti i residenti.

L'oggetto è in ottimo stato di manutenzione generale e non richiede lavori di miglioria aggiuntivi e imminenti se non eventuali personalizzazioni.
I serramenti sono in legno con doppio vetro,
il riscaldamento è alimentato a gasolio e distribuito tramite termosifoni, con contatore centralizzato.

Spese condominiali da circa 2700 CHF all'anno, comprensive del fondo di rinnovamento.

Nelle vicinanze del parco giochi per bambini, a 10 15 minuti da Lugano, a pochi minuti dall'accesso autostradale di Lugano Nord e da tutti i servizi e a pochi passi dai mezzi di trasporto (trenino).

Concludono la proprietà un posto auto esterno a 20.000 CHF, escluso dal prezzo di vendita, e una spaziosa cantina assegnata.

Ideale come investimento a reddito, attualmente affittato.

NON FARTI SCAPPARE QUESTO OGGETTO E CONTATTACI OGGI STESSO PER MAGGIORI INFORMAZIONI!
VV/17149

Dettagli Proprietà

  • Codice Interno : 17149
  • Prezzo : CHF 295'000
  • Anno di Costruzione : 1985
  • Superficie : 50.00 mq
  • Camere : 1
  • Bagni : 1
  • Posteggi : 1

Condividi

Richiedi una Valutazione del Tuo Immobile

Possiamo aiutarti a vendere il tuo immobile al miglior prezzo e velocemente