• In Evidenza
  • In Vendita
  • Aggiornato: 25/11/2025 alle 14:38

MODERNO 5.5 LOCALI CON AMPIA TERRAZZA IN ZONA VERDE A STABIO

Stabio

Tua a CHF 830'000

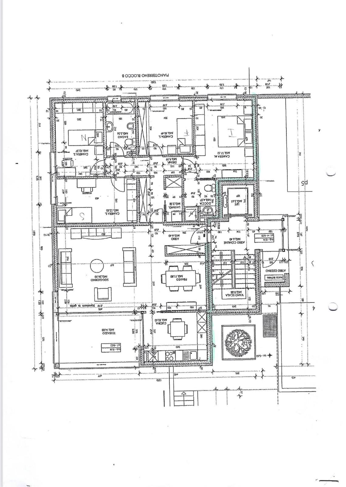
Inserito in un contesto verde e tranquillo, a Stabio, vi proponiamo un moderno appartamento di 5,5 locali con grande terrazza, perfetto per chi cerca comfort e spazio.
L'immobile, costruito nel 2007, è stato ulteriormente rinnovato nel 2013 e nel 2022 con pavimenti, cucina e bagno e finestra nuovi.
Si sviluppa su una superficie di ca. 162 mq lordi e offre una distribuzione interna molto ben studiata.

La zona giorno è luminosa e accogliente, con una cucina attrezzata nuova fatta su misura aperta sul grande soggiorno che si affaccia su una grande terrazza coperta di ca. 20 mq, perfetta per godersi momenti di relax all'aperto.
La zona notte comprende una camera matrimoniale, due camere singole e una camera studio, offrendo così ampie possibilità di personalizzazione degli spazi.
I due spaziosi bagni finestrati sono dotati rispettivamente uno con box doccia e l'altro con vasca oltre all'angolo lavanderia privata.

L'appartamento è dotato di numerosi comfort: attacchi per lavatrice propria, lavanderia in casa, fibra ottica, Wi-Fi, lift/ascensore, tapparelle elettriche e tende da sole esterne.
Inoltre, è presente un deposito biciclette per chi ama gli spostamenti ecologici.

Il riscaldamento è garantito da una caldaia a gas con erogazione a serpentine a pavimento, mentre l'aria condizionata non è presente e sono già installati degli infissi in PVC con vetri doppi.

Non perdere l'opportunità di vivere in un contesto verde e tranquillo, a piedi si possono raggiungere in pochi minuti scuole, negozi, mezzi pubblici. A poco più di 1000 metri troviamo l'imbocco dell'autostrada e il confine Italia.

Completano la proprietà una spaziosa cantina assegnata, un posto auto esterno a 15'000 CHF ed uno in autorimessa a 30'000 CHF, entrambi esclusi dal prezzo esposto.
LN/7951

Dettagli Proprietà

  • Codice Interno : 7951
  • Prezzo : CHF 830'000
  • Anno di Costruzione : 2007
  • Superficie : 162.00 mq
  • Camere : 4
  • Bagni : 2
  • Posteggi : 2

Servizi / Caratteristiche

  • Attacchi per Lavatrice Propria
  • Bagno Finestrato
  • Bidet
  • Deposito biciclette
  • Fibra Ottica
  • Lavastoviglie
  • Lavanderia in casa
  • Lift/ascensore
  • Piano Cottura a Induzione
  • Tapparelle elettriche
  • Tende da sole esterne
  • Wi-Fi

Condividi

Richiedi una Valutazione del Tuo Immobile

Possiamo aiutarti a vendere il tuo immobile al miglior prezzo e velocemente