• In Evidenza
  • In Vendita
  • Aggiornato: 31/03/2026 alle 09:24

NUOVO 4.5 LOCALI CON BALCONE E VISTA APERTA A BELLINZONA

Bellinzona

Tua a CHF 790'000

In esclusiva zona residenziale di Camorino, ti proponiamo un nuovo e luminoso appartamento di 4.5 locali, perfetto per chi cerca comfort e stile. L'appartamento, costruito nel 2024, si presenta in modo ancora grezzo così da avere la possibilità di personalizzare le finiture dei vostri sogni.
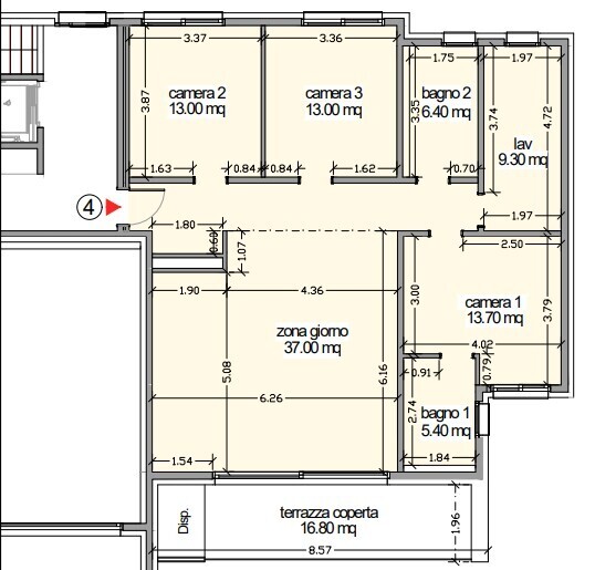
È situato al primo piano di una palazzina di soli 3 livelli e 9 unità e si sviluppa su una superficie commerciale di 140 mq, distribuiti in modo intelligente e funzionale.

La zona giorno è ampia e accogliente, con il progetto di installare una cucina moderna e ben attrezzata che si affaccia sul soggiorno, creando un ambiente open-space perfetto per momenti di convivialità.

Una delle caratteristiche più apprezzabili di questo immobile è la terrazza di 17 mq, che offre uno spazio esterno privato dove poter rilassarsi e godersi momenti di tranquillità. La terrazza è ideale per pranzi all'aperto o semplicemente per prendere il sole nelle giornate più belle.

La zona notte è composta da una camera matrimoniale spaziosa con bagno finestrato en-suite e due camere singole, caratterizzate da finestra che garantiscono una buona illuminazione naturale. Il secondo bagno è anch'esso finestrato e, a concludere l'appartamento, vi è un vasto locale pensato per la lavanderia.

Inoltre, la posizione strategica dell'immobile consente di raggiungere facilmente i principali servizi e comodità della zona, come autostrada, supermercati, scuole e mezzi di trasporto pubblico.

Il riscaldamento è a termopompa e distribuito tramite serpentine le quali hanno anche la possibilità di raffreddare, per garantire una temperatura ottimale anche durante le giornate più calde. Il tutto viene controllato dall'impianto domotico KNX. I vetri sono tripli in PVC e tutte le tapparelle sono elettriche.

Completano la proprietà una cantina e due posti auto dei quali uno in autorimessa per 40'000.- CHF e uno esterno scoperto del valore di 20'000.- CHF.
NS/7706

Dettagli Proprietà

  • Codice Interno : 7706
  • Prezzo : CHF 790'000
  • Anno di Costruzione : 2024
  • Superficie : 129.00 mq
  • Camere : 3
  • Bagni : 2
  • Posteggi : 2

Condividi

Richiedi una Valutazione del Tuo Immobile

Possiamo aiutarti a vendere il tuo immobile al miglior prezzo e velocemente