• In Evidenza
  • In Vendita
  • Aggiornato: 23/12/2025 alle 11:43

STABILE COMMERCIALE-INDUSTRIALE-ARTIGIANALE A VACALLO

Vacallo

Tua a CHF 8'950'000

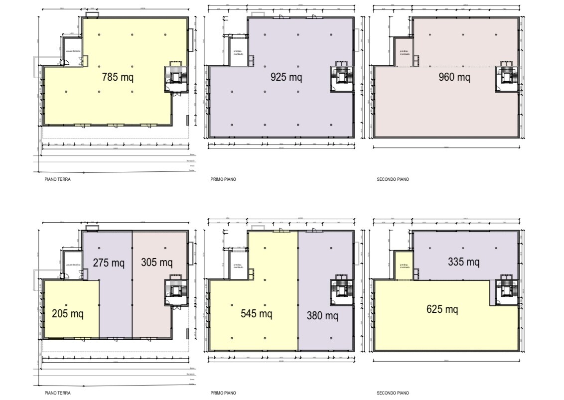
Nel comune di Vacallo è in fase di costruzione un moderno stabile a destinazione commerciale, industriale e artigianale, sviluppato su tre piani per una metratura complessiva di 2'670 mq.
La struttura, realizzata interamente in calcestruzzo armato, offre superfici ampie, versatili e ad elevata portata, ideali per attività produttive, logistiche o di deposito.

La consegna è prevista per gennaio 2026.

Il PIANO TERRA, di 785 mq, presenta un'altezza interna di 4,50 m e consente l'accesso diretto a veicoli e autoarticolati fino a 16 ton, garantendo grande comodità nelle operazioni di carico e scarico. Il tetto soprastante è in calcestruzzo armato, completamente isolato e rifinito con zavorra in ghiaia.

Il PRIMO PIANO, di 925 mq, dispone di un'altezza interna di 4,00 m e mantiene la stessa capacità di carico di 1'000 kg/mq, risultando anch'esso accessibile ad automezzi e autoarticolati fino a 16 ton. Gli spazi si prestano a molteplici attività produttive e di stoccaggio.

Il SECONDO PIANO, di 960 mq, offre un'altezza regolare di 4,00 m nella parte del tetto piano e un'altezza variabile da circa 5,50 m a 1,00 m nella zona con tetto inclinato. Anche qui la portata del solaio è di 1'000 kg/m². L'accesso avviene tramite scale, ascensore di servizio e montauto, idoneo al transito di veicoli e furgoni fino a 3,5 ton. Il tetto è realizzato in legno con putrelle metalliche, adeguatamente isolato e rivestito con copertura metallica tipo Riverclack.

L'intero immobile presenta finiture moderne e funzionali: portoni sezionali industriali, pavimentazione al quarzo lisciata a elicottero su tutti i livelli, vano scala completato e rifinito, porte EI30, lift di servizio adatto anche ai transpallet.

Termopompa aria-acqua per riscaldamento, raffrescamento e produzione di acqua calda, oltre a un impianto fotovoltaico posato sulla copertura.
L'edificio è isolato con cappotto da 16 cm per garantire elevata efficienza energetica, e offre predisposizioni per impianti elettrici personalizzabili e per la realizzazione di servizi igienici e sistemi di ventilazione nei due vani tecnici.
Gli spazi possono ancora essere personalizzati secondo le esigenze dell'utilizzatore.

Il capannone è dotato di 20 posteggi per auto e di ampi spazi di manovra per automezzi e autoarticolati, assicurando massima funzionalità operativa.

È possibile acquistare porzioni della struttura, con superfici disponibili a partire da 205 mq, oppure acquistare anche un intero piano, a seconda delle esigenze. In alternativa, è possibile affittare l'intero stabile per un utilizzo esclusivo e completamente adattabile.
ADT/16841

Dettagli Proprietà

  • Codice Interno : 16841
  • Prezzo : CHF 8'950'000
  • Anno di Costruzione : 2025
  • Superficie : 2670.00 mq
  • Camere : 0
  • Bagni : 0
  • Posteggi : 20

Servizi / Caratteristiche

  • Lift/ascensore

Condividi

Richiedi una Valutazione del Tuo Immobile

Possiamo aiutarti a vendere il tuo immobile al miglior prezzo e velocemente