• In Evidenza
  • In Vendita
  • Aggiornato: 31/03/2026 alle 09:24

SPAZIOSA VILLETTA 4.5 CON GIARDINO E GROTTINO A NOVAZZANO

Novazzano

Tua a CHF 890'000

Bellissima villetta inserita in contesto residenziale tranquillo, soleggiato e immerso nel verde, nel comune di Novazzano, con grande locale hobby/grottino al piano inferiore, e ampio giardino privato.

Questa casa unifamiliare di 4.5 locali, è di circa 145 mq ed è stata edificata su un fondo di 350 mq interamente pianeggiante, ideale per coloro che desiderano abitare in un contesto riservato senza rinunciare al comfort e alla qualità di vita.
L'abitazione gode di una posizione privilegiata, orientata a sud e soleggiata per l'intera giornata, circondata da un'atmosfera rilassante ma al tempo stesso comoda ai principali servizi e a pochi minuti sia dall'accesso autostradale sia dal confine italiano.

L'immobile si sviluppa su due livelli fuori terra più un seminterrato e dispone di spazi generosi e ben illuminati, così organizzati:

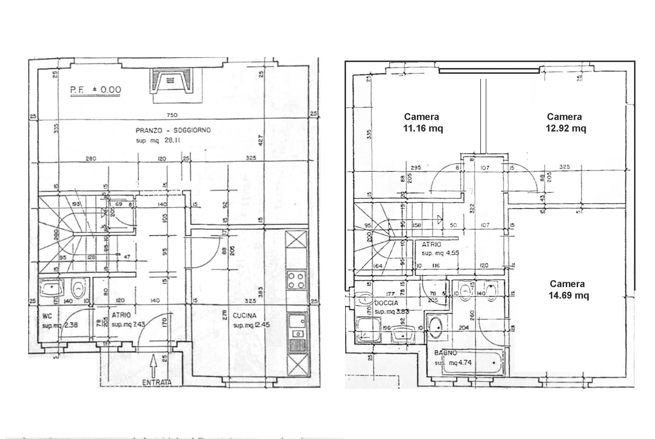
PIANO TERRA: Luminosa zona giorno, composta da ingresso con disimpegno, un bagnetto ospiti finestrato, una grande cucina moderna abitabile separata, una grande salotto che comprende anche la zona pranzo, con porte finestre che consentono l'accesso al bellissimo giardino.

PRIMO PIANO: Zona notte con 3 camere da letto di cui due con accesso al balcone con affaccio sul giardino e una camera matrimoniale con bagno vasca finestrato en-suite. Le camere hanno i soffitti alti e rivestiti in legno, sono molto luminose e accoglienti. Un secondo bagno finestrato con bellissima doccia rivestita in mosaico, serve le altre due stanze.

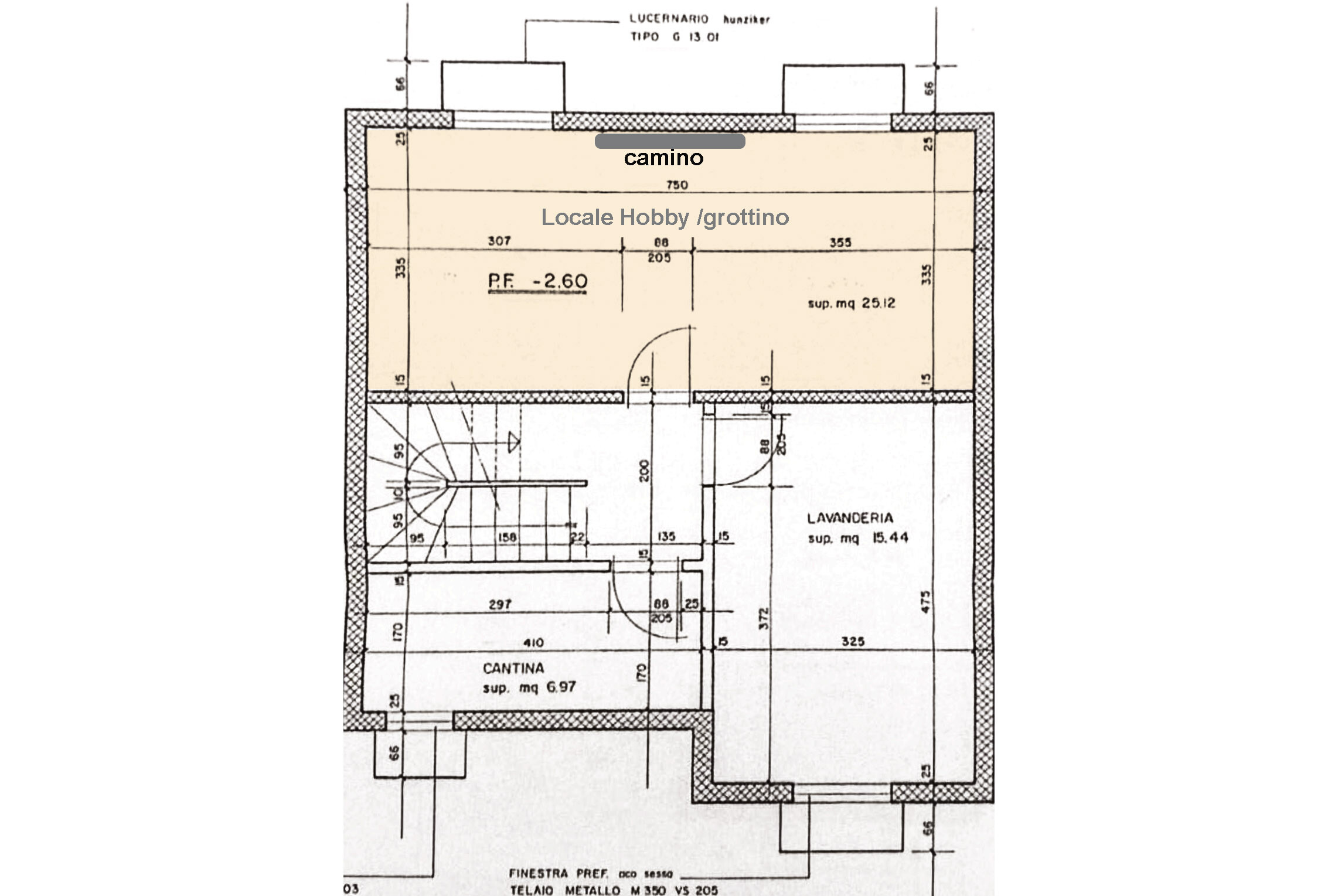
PIANO -1: Oltre ai locali tecnici e ad una grande lavanderia, un'ampia stanza hobby/grottino con caminetto e spazio per salottino TV e tavolo per pranzi o cene, perfetto per organizzare feste con gli amici soprattutto nel periodo invernale.

Il giardino è di fatto un altro ambiente, grazie alla pavimentazione da esterno elegante e funzionale che lo riveste in parte. Infatti è possibile arredarlo con mobili da giardino, tra cui un grande tavolo con anche oltre 8 posti a sedere.

Il sistema di riscaldamento è alimentato da caldaia a gasolio con distribuzione tramite a serpentine a pavimento, mentre i serramenti in legno con doppi vetri garantiscono un ottimo isolamento termico.

Tra le dotazioni più interessanti figurano i pannelli solari, la colonnina di ricarica per auto elettriche e l'impianto di riscaldamento autonomo, che sottolineano l'attenzione rivolta al risparmio energetico e alla sostenibilità.

La proprietà è completata da tre pratici posti auto: un box privato, un parcheggio esterno e uno coperto da tettoia.
VV/7858

Dettagli Proprietà

  • Codice Interno : 7858
  • Prezzo : CHF 890'000
  • Anno di Costruzione : 1987
  • Superficie : 145.00 mq
  • Camere : 4
  • Bagni : 3
  • Posteggi : 3

Servizi / Caratteristiche

  • Bagno Finestrato
  • Camino
  • Lavanderia in casa
  • Porta Blindata
  • Tende da sole esterne

Condividi

Richiedi una Valutazione del Tuo Immobile

Possiamo aiutarti a vendere il tuo immobile al miglior prezzo e velocemente