• In Evidenza
  • In Vendita
  • Aggiornato: 12/04/2026 alle 11:19

MODERNO SPAZIO COMMERCIALE IN ZONA STRATEGICA A VACALLO

Vacallo

Tua a CHF 680'000

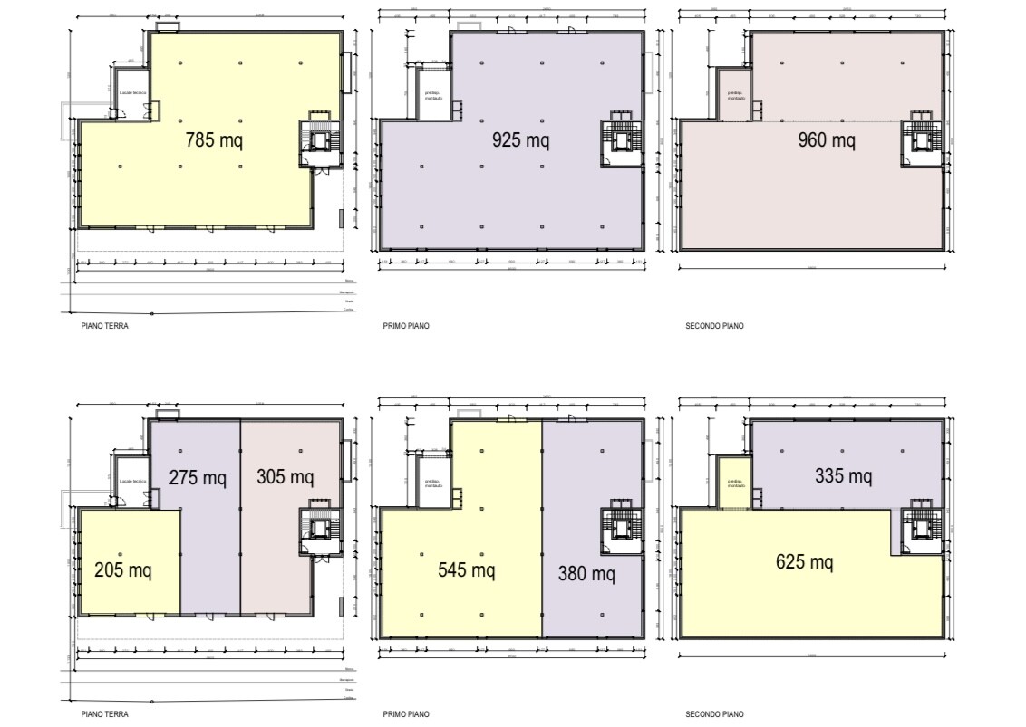
Nel comune di Vacallo è in fase di costruzione un moderno stabile a destinazione commerciale, industriale e artigianale, sviluppato su tre piani fuori terra per una metratura complessiva di 2'670 mq.
La struttura, realizzata interamente in calcestruzzo armato, offre superfici ampie, versatili ed elevate portate, ideali per attività produttive, logistiche e di deposito in posizione strategica e prossima a tutti i principali collegamenti e a pochi minuti dal confine con l'Italia.

È possibile acquistare l'intero stabile, oppure scegliere blocchi singoli a partire da 205 mq, combinare più spazi, acquistare un intero piano o più piani, rendendo la soluzione estremamente flessibile e adattabile a qualsiasi tipo di attività commerciale, industriale o artigianale.

La consegna è prevista per aprile 2026.

Al PIANO TERRA, l'altezza interna è di 4,50 m, con il tetto soprastante in calcestruzzo armato, completamente isolato e rifinito con zavorra di ghiaia. È previsto l'accesso diretto a veicoli e autoarticolati fino a 16 ton. Le superfici disponibili al piano terra sono suddivise in 205 mq, 275 mq e 305 mq, con possibilità di combinare più blocchi secondo le proprie esigenze.

Il PRIMO PIANO ha un'altezza interna di 4,00 m, mantiene la stessa capacità di carico di 1'000 kg/mq ed è anch'esso accessibile ad automezzi e autoarticolati fino a 16 ton. Le superfici disponibili sono di 545 mq e 380 mq, singolarmente o combinate per creare un unico grande spazio produttivo o logistico.

Il SECONDO PIANO ha un'altezza di 4,00 m nella parte del tetto piano e variabile da circa 5,50 m a 1,00 m nella zona del tetto inclinato. L'accesso è garantito tramite scale, ascensore di servizio e montauto, idoneo al transito di veicoli e furgoni fino a 3,5 ton.
Le superfici disponibili sono di 335 mq e 625 mq, anch'esse frazionabili o combinabili a piacere.

L'intero immobile è realizzato con rifiniture moderne e funzionali, tra cui portoni sezionali industriali, pavimentazione lisciata al quarzo su tutti i livelli, vano scala completato e rifinito, lift di servizio adatto anche ai transpallet, termopompa aria-acqua per riscaldamento, raffrescamento e produzione di acqua calda, e impianto fotovoltaico posato sul tetto. L'edificio è inoltre isolato con cappotto da 16 cm, garantendo massima efficienza energetica. Sono già predisposti impianti elettrici personalizzabili tramite canaline esterne e impianti sanitari nei due vani tecnici dedicati.

Il capannone dispone di 20 posteggi per auto e di ampi spazi di manovra per automezzi e autoarticolati, assicurando massima funzionalità operativa. Gli spazi possono ancora essere personalizzati secondo le esigenze dell'utilizzatore.

NON LASCIARTI SCAPPARE QUESTO OGGETTO E CONTATTACI OGGI STESSO PER MAGGIORI INFORMAZIONI

ADT/16891

Dettagli Proprietà

  • Codice Interno : 16891
  • Prezzo : CHF 680'000
  • Anno di Costruzione : 2025
  • Superficie : 205.00 mq
  • Camere : 0
  • Bagni : 0
  • Posteggi : 20

Servizi / Caratteristiche

  • Lift/ascensore

Condividi

Richiedi una Valutazione del Tuo Immobile

Possiamo aiutarti a vendere il tuo immobile al miglior prezzo e velocemente