Appartamento di nuova generazione di 2.5 locali con bellissima terrazza coperta di 17 mq ca., inserito in nuova residenza: un elegante edificio di sole 7 unità, in zona tranquilla e soleggiata, realizzata su un terreno di 782 mq, con finiture moderne e mattoni a vista.
La palazzina, orientata a sud per garantire un'ottima esposizione solare, si sviluppa su quattro livelli fuori terra con solo due unità abitative per piano, offrendo così privacy e tranquillità.
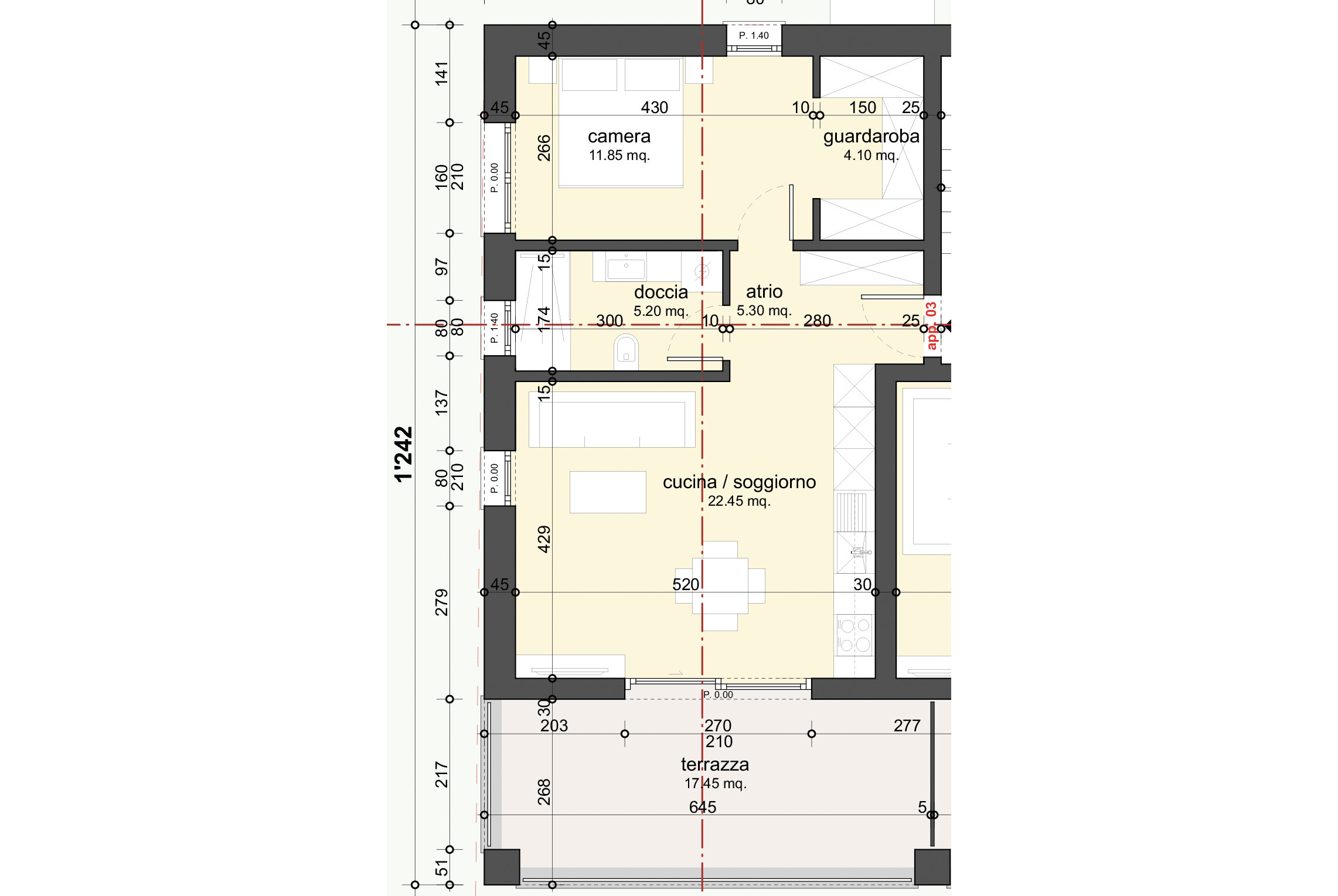
Appartamenti attualmente disponibili:
- 1° piano: superficie di ca. 59.90 mq + terrazza di ca. 17.40 mq + cantina di ca. 6.50 mq.
Prezzo: CHF 427'370.
 
Termine di Consegna: INVERNO 2025.
La proprietà è acquistabile anche tramite formula Rent to Buy (Affitto con Riscatto); maggiori informazioni in fase di richiesta o visita.
La residenza si sviluppa su quattro livelli fuori terra così composti:
- Piano interrato: autorimessa, 8 cantine e locale tecnico;
- Piano terra: 2 appartamenti (2.5 e 3.5 locali) con giardino privato - già riservati;
- 1° e 2° piano: appartamenti da 2.5 locali con ampie terrazze;
- 3° piano (attico): spazioso 5.5 locali con 2 terrazze, di cui una roof top con vista.
Dotazioni e comfort:
- Infissi in PVC con vetri tripli;
- Tapparelle elettriche;
- Pavimenti in grès porcellanato;
- Riscaldamento a termopompa aria-acqua con distribuzione mediante serpentine a pavimento;
- Isolamento termico con cappotto esterno.
Personalizzazione su misura! Al momento, è ancora possibile scegliere le rifiniture interne per adattare la casa ai tuoi gusti. 
Un'opportunità unica da non perdere!
Posizione strategica:
Tutti i principali servizi come scuole, farmacie, medici, ristoranti, negozi, banche, posta e la fermata FLP sono comodamente raggiungibili a piedi.
1 Posto auto in autorimessa disponibile a CHF 40'000 (non incluso nel prezzo di vendita)
CL/7206
 
                 
                 
                 
                 
                 
                